MIR Residences: Μεζονέτες

Αφήστε τα στοιχεία σας
Αφήστε τα στοιχεία σας

icon Σχετικά με το έργο

MIR Residences στο Pyrgos, Λεμεσός

MIR Residences είναι ένα σύγχρονο οικιστικό έργο που βρίσκεται στην περιοχή Pyrgos της Λεμεσού, στη νότια ακτή της Κύπρου. Το συγκρότημα περιλαμβάνει περιορισμένο αριθμό σύγχρονων μεζονετών και βρίσκεται περίπου 350 μέτρα από τη θάλασσα, προσφέροντας έναν συνδυασμό άνετης κατοικίας και παραθαλάσσιας ζωής.

Το έργο συνδυάζει ήσυχο οικιστικό περιβάλλον με εύκολη πρόσβαση στις υποδομές της πόλης. Η τοποθεσία στην ανατολική πλευρά της Λεμεσού επιτρέπει γρήγορη πρόσβαση στον παραλιακό δρόμο, στον αυτοκινητόδρομο και σε δημοφιλείς χώρους αναψυχής.

Τοποθεσία στην περιοχή Pyrgos, Λεμεσός

MIR Residences βρίσκεται στο Pyrgos, μία από τις παραθαλάσσιες περιοχές της Λεμεσού που συνδυάζει κοντινή απόσταση από τη θάλασσα και εύκολη πρόσβαση στις βασικές υποδομές της πόλης.

  • Περιοχή: Pyrgos
  • Πόλη: Λεμεσός
  • Απόσταση από τη θάλασσα: περίπου 350 μέτρα
  • Ήσυχο παραθαλάσσιο οικιστικό περιβάλλον
  • Εύκολη πρόσβαση στις υποδομές της Λεμεσού

Βασικά χαρακτηριστικά του έργου

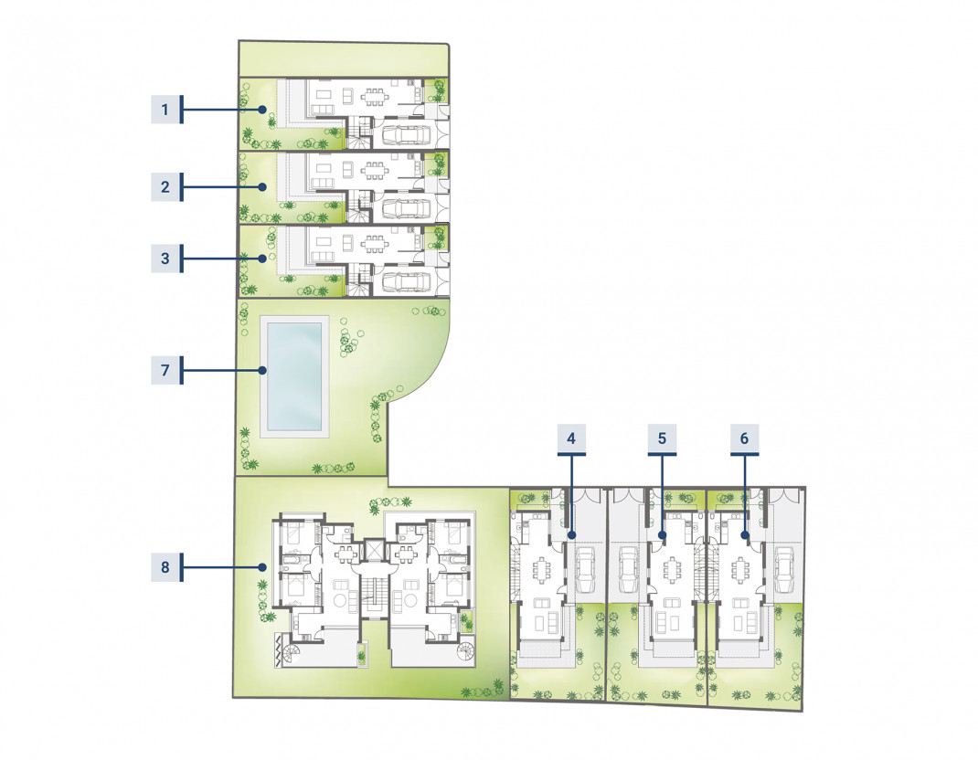
MIR Residences αποτελεί ένα μικρής κλίμακας οικιστικό έργο που αποτελείται από μεζονέτες δύο επιπέδων.

  • Συνολικός αριθμός κατοικιών: 6 μεζονέτες
  • Όροφοι: 2 επίπεδα
  • Υπνοδωμάτια: 2 υπνοδωμάτια
  • Εμβαδό κατοικιών: από 106 έως 140 m²
  • Ενεργειακή κλάση: A
  • Ημερομηνία ολοκλήρωσης: Δεκέμβριος 2024

Διάταξη κατοικιών και σχεδιασμός

Οι κατοικίες στο MIR Residences έχουν σχεδιαστεί σε μορφή μεζονέτας δύο επιπέδων. Η διάταξη αυτή επιτρέπει τον διαχωρισμό των κοινόχρηστων και ιδιωτικών χώρων, προσφέροντας μεγαλύτερη άνεση στην καθημερινή ζωή.

  • Διώροφες κατοικίες
  • Ανοιχτός χώρος καθιστικού και κουζίνας
  • Υπνοδωμάτια σε ξεχωριστό επίπεδο
  • Άνετοι εσωτερικοί χώροι
  • Βεράντες ή ιδιωτικοί εξωτερικοί χώροι

Αποστάσεις και κοντινές υποδομές

MIR Residences βρίσκεται κοντά σε βασικές παραθαλάσσιες υποδομές και χώρους αναψυχής της ανατολικής Λεμεσού.

  • Θάλασσα: περίπου 350 m
  • Amathos Restaurant & Bar: 0,65 km
  • Crest Watersports Centre: 1,3 km
  • St Raphael Marina: 1,4 km
  • Monte Caputo concert hall: 1,6 km

Τιμή εκκίνησης

Οι κατοικίες στο MIR Residences ξεκινούν από περίπου €650.000. Η τελική τιμή μπορεί να διαφέρει ανάλογα με το εμβαδό και τη θέση της κατοικίας μέσα στο έργο.

Επενδυτική προοπτική

MIR Residences βρίσκεται στη Λεμεσό, μία από τις πιο δυναμικές αγορές ακινήτων της Κύπρου. Η πόλη προσελκύει διεθνείς επαγγελματίες και επενδυτές, δημιουργώντας σταθερή ζήτηση για σύγχρονες κατοικίες.

  • Κατάλληλο για μόνιμη κατοικία
  • Κατάλληλο για αγορά κατοικίας κοντά στη θάλασσα
  • Περιορισμένος αριθμός κατοικιών στο έργο
  • Σταθερή ζήτηση για σύγχρονες κατοικίες στη Λεμεσό

Για όσους αναζητούν μεζονέτες κοντά στη θάλασσα στη Λεμεσό, το MIR Residences αποτελεί ένα μικρό και σύγχρονο οικιστικό έργο με προνομιακή τοποθεσία.

ΠερισσότεραΚλείσιμο

Σχετικά με το έργο

icon Κτίρια

6

icon Αριθμός ορόφων

2

Τεχνικές προδιαγραφές

Δομή & Τοιχοποιία
  • Αντισεισμικός σκελετός από μπετόν
  • Εξωτερική τοιχοποιία με θερμομόνωση
  • Μόνωση οροφής και στεγανοποίηση
  • Εσωτερικό φινίρισμα με σπάτουλα και μπογιά
Πόρτες & Παράθυρα
  • Πόρτα ασφαλείας με επένδυση μελαμίνης
  • Εσωτερικές πόρτες Ιταλικού σχεδιασμού
  • Θερμομονωτικά αλουμίνια Alumil
Εσωτερική Επένδυση
  • Ιταλική κουζίνα με πάγκο και πλάτη
  • Ιταλικές ντουλάπες laminate
  • Laminate παρκέ στα υπνοδωμάτια
  • Κεραμικά δάπεδα σε σαλόνι & βεράντες
  • Μάρμαρο σε όλες τις σκάλες
Υδραυλικά & Είδη Υγιεινής
  • Επώνυμα είδη υγιεινής και εξαρτήματα χρωμίου
  • Ηλιακός συλλέκτης με δεξαμενή 1 τόνου
  • Διπλό σύστημα θέρμανσης (ηλιακό/ηλεκτρικό)
  • Μηχανικός εξαερισμός σε μπάνια/WC
Κλιματισμός & Ηλεκτρολογικά
  • Πρόνοια για κλιματισμό & υποδαπέδια θέρμανση
  • Πλήρης ηλεκτρολογική εγκατάσταση (EAC)
  • Φωτισμός LED και πρόνοιες φωτιστικών
  • Ανελκυστήρας επιβατών (πρότυπα ΕΕ)
Εξωτερικοί Χώροι
  • Κοινόχρηστη πισίνα και χώρος χαλάρωσης
  • Περίφραξη 1.2μ & ηλεκτρικές πύλες
  • Χώρος στάθμευσης και αποθήκη
  • Δάπεδα σκυροδέματος εξωτερικά
ΠερισσότεραΚλείσιμο

Πλεονεκτήματα του έργου

Ask the developer

Choosing an apartment is an important decision – the developer will be happy to assist, offer customized terms and answer any questions.

What are the payment terms in the project? What promotions or discounts are currently available to buyers? Which banks do you work with for a mortgage? What do the technical specifications of the apartment include? Can changes be made to the design?
Contact the entrepreneur
girl

Γκαλερί

  • Γκαλερί
  • Φωτογραφίες εσωτερικού χώρου

04-09-2025

Στον χάρτη

google_map waze

Limassol Pyrgos

'~$file['description']~'
Αφήστε τα στοιχεία σας

Κατασκευαστής

MIR Residences: Μεζονέτες

icon
Σύνολο στην πλατφόρμα

9 Έργα

Εμφάνιση αριθμού 35725322112
Η δήλωση του έργου είναι διαθέσιμη στον ιστότοπο του κατασκευαστή. Τα αναπτυξιακά έργα περιλαμβάνουν όλες τις περιοχές.

Περισσότερα για το έργο

about Προσφορά

Pissouri Forest Park

Limassol

Εγγραφείτε στο ενημερωτικό μας δελτίο

Μάθετε πρώτοι για νέα έργα και αγοράστε ακίνητο στις καλύτερες τιμές!

Συστάσεις

Περισσότερα P.L. Property Gallery Developers & Constructors Ltd
Άλλοι χρήστες βλέπουν
Προβολές πρόσφατα
Pissouri Forest Park

Pissouri Forest Park

Limassol

P.L. Property Gallery Developers & Constructors Ltd

YOO Limassol Apartments

YOO Limassol Apartments

Limassol

P.L. Property Gallery Developers & Constructors Ltd

YOO Limassol Villas

YOO Limassol Villas

Limassol

P.L. Property Gallery Developers & Constructors Ltd

Homer Residences

Homer Residences

Limassol

P.L. Property Gallery Developers & Constructors Ltd

MIR Residences: Maisonettes

MIR Residences: Maisonettes

Limassol

P.L. Property Gallery Developers & Constructors Ltd

Eden Bay

Eden Bay

Paphos

BBF

Seven Residences

Seven Residences

Limassol

P.L. Property Gallery Developers & Constructors Ltd

Flow

Flow

Limassol

BBF

MIR Residences: Maisonettes

MIR Residences: Μεζονέτες

Limassol

P.L. Property Gallery Developers & Constructors Ltd

Ήρθε η ώρα για ανανέωση
σε ένα νέο διαμέρισμα

icon
  • Επιτόκια
    προσιτά
    icon
  • Ασφάλεια
    για την οικογένεια
    icon

Στεγαστικό δάνειο

Στεγαστικό δάνειο για αγορά νέου ακινήτου από εργολάβο
Λάβετε μια συμφέρουσα προσφορά

background

Ψάχνετε κατοικία και δεν μπορείτε να βρείτε
κάτι που να σας ταιριάζει;

Διεύθυνση ή όνομα έργου

Διεύθυνση ή όνομα έργου

"Βρήκατε κάποιο λάθος;" - Ενημερώστε μας. Μαζί θα κάνουμε τον ιστότοπο ακόμη καλύτερο!

Αναφορά σφάλματος

Βρήκατε κάποιο λάθος;
Ερώτηση 1 από 6
Συμπληρώστε ένα σύντομο ερωτηματολόγιο για να βρείτε τα κατάλληλα νέα έργα
Σε ποια περιοχή αναζητάτε;
icon
icon
Λάβετε συμβουλή
Ερώτηση 2 από 6
Τι είδους ακίνητο αναζητάτε;
Επιλέξτε την επιλογή που ανταποκρίνεται καλύτερα στις ανάγκες σας. Έτσι θα μπορέσουμε να σας προτείνουμε τα πιο κατάλληλα ακίνητα.
icon
icon
Πίσω
Λάβετε συμβουλή
Ερώτηση 3 από 6
Αριθμός δωματίων
Μπορείτε να επιλέξετε περισσότερες από μία επιλογές
Πίσω
Λάβετε συμβουλή
Ερώτηση 4 από 6
Προϋπολογισμός
Πίσω
Λάβετε συμβουλή
Ερώτηση 5 από 6
Χρειάζεστε συμβουλή για στεγαστικό δάνειο;
  • Προνομιακά επιτόκια
  • Εξοικονόμηση χρόνου και χρημάτων
  • Επαγγελματική καθοδήγηση σε όλη τη διαδικασία
  • Εργαζόμαστε για εσάς, όχι για τις τράπεζες
Πίσω
Λάβετε συμβουλή
Ερώτηση 6 από 6
Χρειάζεται να πουλήσετε το υπάρχον ακίνητό σας για να αγοράσετε το νέο;
Πίσω
Λάβετε συμβουλή
Αφήστε τα στοιχεία επικοινωνίας σας και θα επικοινωνήσουμε μαζί σας με προτεινόμενες επιλογές. Δωρεάν
Πίσω
Ρυθμίσεις προσβασιμότητας στον ιστότοπο
Αλλαγή χρώματος κειμένου
Αλλαγή χρώματος φόντου
Αλλαγή χρώματος επικεφαλίδων
Αύξηση/μείωση γραμματοσειράς
Αλλαγή διαστήματος γραμμών
Αλλαγή απόστασης γραμμάτων
Αφήστε τα στοιχεία σας
Αφήστε τα στοιχεία σας
image

Λάβετε την παρουσίαση του έργου μέσω email