MIR Residences: Maisonettes

Leave your details
Leave your details

icon About the project

MIR Residences in Pyrgos, Limassol, Cyprus

MIR Residences is a boutique residential development located in the Pyrgos area of Limassol on the southern coast of Cyprus. The project offers a limited collection of modern maisonettes designed for comfortable living close to the sea while maintaining a quiet residential atmosphere.

Homes at MIR Residences are positioned approximately 350 metres from the coastline and provide convenient access to Limassol’s coastal infrastructure. The development focuses on practical layouts, contemporary architecture and a private residential format with only a small number of homes.

Location in Pyrgos, Limassol

MIR Residences is located in Pyrgos, one of the eastern residential areas of Limassol. The neighbourhood is known for its proximity to the coastline and quick access to the Limassol seafront road and highway connections.

  • District: Pyrgos
  • City: Limassol
  • Distance to the sea: approximately 350 metres
  • Residential environment close to the coastline
  • Convenient access to Limassol city infrastructure

Project Facts

MIR Residences is designed as a small-scale residential development focused on maisonette-style homes with two-level layouts.

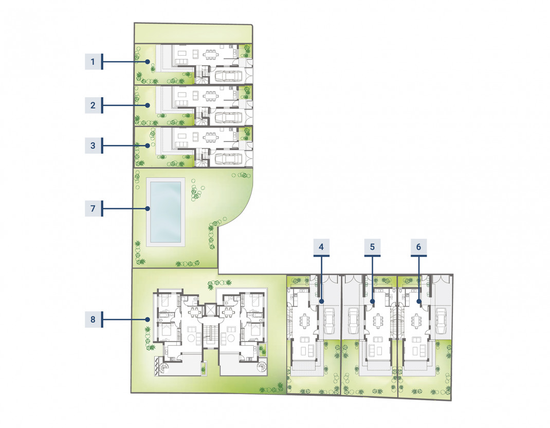
  • Total units: 6 maisonettes
  • Floors: 2 levels
  • Bedrooms: 2 bedrooms
  • Property size: from 106 m² to 140 m²
  • Energy class: A
  • Completion date: December 2024

Property Layout and Design

The homes at MIR Residences follow a maisonette concept, offering a layout that separates living and sleeping areas across two floors. This format provides a house-like living experience while remaining within a structured residential development.

  • Two-level residential layouts
  • Open-plan living and dining areas
  • Modern kitchen spaces
  • Comfortable bedroom configuration
  • Private outdoor spaces or terraces

Distances and Nearby Infrastructure

MIR Residences benefits from proximity to coastal infrastructure and leisure locations in the eastern Limassol area.

  • Sea: approximately 350 m
  • Amathos Restaurant & Bar: 0.65 km
  • Crest Watersports Centre: 1.3 km
  • St Raphael Marina: 1.4 km
  • Monte Caputo concert hall: 1.6 km

Price From

Prices at MIR Residences range from approximately €650,000 to €775,000 depending on the unit size and position within the development.

Investment Potential in Limassol

MIR Residences is located in one of the most active property markets in Cyprus. Limassol continues to attract international residents, business professionals and investors, supporting stable demand for well-located residential properties.

  • Suitable for permanent residence
  • Suitable as a coastal home in Limassol
  • Limited supply of new maisonettes
  • Strong demand for modern properties close to the sea

For buyers searching for maisonettes near the sea in Limassol, MIR Residences represents a compact residential development with a limited number of homes and convenient coastal location.

MoreClose

About the project

icon Buildings

6

icon Number of floors

2

Technical specification

Structure & Walls
  • Anti-seismic reinforced concrete frame
  • External masonry with thermal insulation
  • Insulated roof with weatherproof coating
  • Internal walls with spatula & paint finish
Doors & Windows
  • Safety entrance door (melamine & stainless steel)
  • Italian style internal doors
  • Thermal aluminum Alumil with double glazing
Interior Finishes
  • Italian style kitchen with backsplash
  • Italian laminate wardrobes & cupboards
  • Laminate parquet in all bedrooms
  • Ceramic floor tiles in living areas & verandas
  • Marble finishes for all staircases
Sanitary & Plumbing
  • Branded sanitary ware & chrome fittings
  • Solar collector with 1-ton water tank
  • Dual electrical/solar heater boiler
  • Mechanical ventilation in bathrooms
Climate & Electrical
  • Provisions for A/C split units & underfloor heating
  • Full EAC compliant electrical installation
  • LED recessed lighting & pendant provisions
  • Passenger/goods lift (EU standards)
External & Common Areas
  • Common outdoor pool & relaxation area
  • Boundary wall (1.2m) & electric gates
  • Private parking and storage per plan
  • Concrete paving for external areas
MoreClose

Project advantages

Ask the developer

Choosing an apartment is an important decision – the developer will be happy to assist, offer customized terms and answer any questions.

What are the payment terms in the project? What promotions or discounts are currently available to buyers? Which banks do you work with for a mortgage? What do the technical specifications of the apartment include? Can changes be made to the design?
Contact the entrepreneur
girl

Gallery

  • Gallery
  • Interior photos

04-09-2025

On the map

google_map waze

Limassol Pyrgos

Leave your details

Developer

MIR Residences: Maisonettes

icon
Total on site

9 Projects

The project statement can be found on the developer's website. Development projects include all areas.
about Promotion

MIR Residences: Maisonettes

Limassol

Subscribe to our newsletter

Be the first to get updates on new projects and buy real estate at the best prices!

Recommendations

More P.L. Property Gallery Developers & Constructors Ltd
Others are viewing
Recently viewed
Pissouri Forest Park

Pissouri Forest Park

Limassol

P.L. Property Gallery Developers & Constructors Ltd

YOO Limassol Apartments

YOO Limassol Apartments

Limassol

P.L. Property Gallery Developers & Constructors Ltd

YOO Limassol Villas

YOO Limassol Villas

Limassol

P.L. Property Gallery Developers & Constructors Ltd

Homer Residences

Homer Residences

Limassol

P.L. Property Gallery Developers & Constructors Ltd

Capri

Capri

Limassol

BBF

Pissouri Forest Park

Pissouri Forest Park

Limassol

BBF

Majestic Villas

Majestic Villas

Limassol

P.L. Property Gallery Developers & Constructors Ltd

YOO Limassol Apartments

YOO Limassol Apartments

Limassol

P.L. Property Gallery Developers & Constructors Ltd

MIR Residences: Maisonettes

MIR Residences: Maisonettes

Limassol

P.L. Property Gallery Developers & Constructors Ltd

It's time to renew
in a new apartment

icon
  • Interest rates
    Affordable
    icon
  • Security
    For the family
    icon

Mortgage

Mortgage for the purchase of a new property from a developer
Get a profitable offer

background

Looking for a home and can’t find
something that suits you?

Project address or name

Project address or name

"Found a mistake?" - Let us know. Together we'll make the site better!

Report an error

Found a mistake?
Question 1 of 6
Fill out a short questionnaire to check match with new projects
Which area are you looking in?
icon
icon
Get advice
Question 2 of 6
What type of property are you looking for?
Select the option that best matches your needs. This will help us recommend the most suitable properties.
icon
icon
Back
Get advice
Question 3 of 6
Number of rooms
You can select multiple options
Back
Get advice
Question 4 of 6
Budget
Back
Get advice
Question 5 of 6
Do you need mortgage advice?
  • Preferred interest rates
  • Time and money saving
  • Professional guidance throughout the process
  • Working for you, not the banks
Back
Get advice
Question 6 of 6
Do you need to sell your current property to purchase the new one?
Back
Get advice
Leave your contact details, and we will get back to you with recommended offers. Free of charge
Back
Accessibility settings on the site
Change text color
Change background color
Change heading color
Increase/decrease font
Change line spacing
Change letter spacing
Leave your details
Leave your details
image

Receive the project presentation by email