MIR Residences: Мезонеты

Оставьте ваши данные
Оставьте ваши данные

icon О проекте

MIR Residences в районе Pyrgos, Лимассол

MIR Residences — это современный жилой проект в районе Pyrgos города Лимассол на южном побережье Кипра. Комплекс включает ограниченную коллекцию мезонетов и расположен всего примерно в 350 метрах от моря, что делает его привлекательным вариантом для жизни рядом с побережьем.

Проект сочетает спокойную жилую атмосферу с удобным доступом к городской инфраструктуре. Благодаря расположению в восточной части Лимассола жители получают быстрый доступ к прибрежной дороге, основным транспортным маршрутам и популярным зонам отдыха.

Локация в районе Pyrgos, Лимассол

MIR Residences расположен в жилом районе Pyrgos — одном из прибрежных районов Лимассола, который сочетает близость к морю и удобную транспортную доступность.

  • Район: Pyrgos
  • Город: Лимассол
  • Расстояние до моря: около 350 метров
  • Спокойная прибрежная жилая зона
  • Удобный доступ к городской инфраструктуре

Основные характеристики проекта

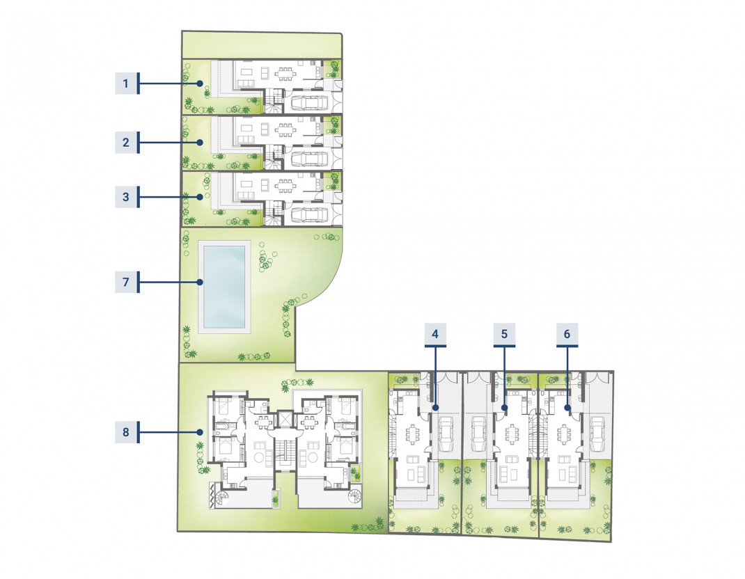
MIR Residences представляет собой небольшой жилой комплекс, состоящий из мезонетов с двухуровневой планировкой.

  • Количество домов: 6 мезонетов
  • Этажность: 2 уровня
  • Спальни: 2 спальни
  • Площадь домов: от 106 до 140 м²
  • Энергоэффективность: класс A
  • Дата завершения строительства: декабрь 2024

Планировки и формат жилья

Дома в MIR Residences выполнены в формате мезонетов с двухуровневой планировкой. Такая конфигурация позволяет разделить зоны отдыха и общественные пространства.

  • Двухуровневая планировка
  • Гостиная и кухня открытого типа
  • Спальни на отдельном уровне
  • Просторные внутренние пространства
  • Террасы или приватные наружные зоны

Расстояния и ближайшая инфраструктура

MIR Residences находится рядом с прибрежной инфраструктурой и популярными объектами отдыха восточного Лимассола.

  • Море: около 350 м
  • Amathos Restaurant & Bar: 0,65 км
  • Crest Watersports Centre: 1,3 км
  • St Raphael Marina: 1,4 км
  • Monte Caputo концертный зал: 1,6 км

Стоимость недвижимости

Стоимость домов в MIR Residences начинается примерно от €650 000. Цена может варьироваться в зависимости от площади дома и его расположения в комплексе.

Инвестиционный потенциал

MIR Residences расположен в Лимассоле — одном из наиболее активных рынков недвижимости Кипра. Город привлекает международные компании, специалистов и инвесторов, что поддерживает стабильный спрос на современное жильё.

  • Подходит для постоянного проживания
  • Подходит для покупки дома у моря
  • Ограниченное количество домов в проекте
  • Стабильный спрос на недвижимость рядом с морем

Для покупателей, ищущих мезонеты рядом с морем в Лимассоле, MIR Residences представляет компактный жилой проект с удобным расположением и современным форматом жилья.

ПодробнееЗакрыть

О проекте

icon Здания

6

icon Количество этажей

2

Техническая спецификация

Конструктив и стены
  • Сейсмостойкий железобетонный каркас
  • Внешние стены с термоизоляцией
  • Кровля с гидро- и теплоизоляцией
  • Внутренняя отделка: шпаклевка и покраска
Двери и окна
  • Бронированная входная дверь (меламин)
  • Межкомнатные двери в итальянском стиле
  • Теплоизоляционный алюминий Alumil
Внутренняя отделка
  • Итальянская кухня и кухонный фартук
  • Ламинированные шкафы (Италия)
  • Ламинат в спальнях, плитка в гостиной
  • Мраморная отделка лестниц
Сантехника и системы
  • Брендовая сантехника и хром-смесители
  • Солнечный водонагреватель (бак 1т)
  • Комбинированный электро-солнечный бойлер
  • Принудительная вентиляция санузлов
Климат и электрика
  • Подготовка под кондиционеры и теплый пол
  • Полная электрика по стандартам EAC
  • LED-освещение и выводы под люстры
  • Грузопассажирский лифт (стандарт ЕС)
Территория и удобства
  • Общий бассейн и зона отдыха
  • Ограждение (1.2м) и электро-ворота
  • Парковочное место и кладовая по плану
  • Бетонное покрытие внешних площадок
ПодробнееЗакрыть

Преимущества проекта

Ask the developer

Choosing an apartment is an important decision – the developer will be happy to assist, offer customized terms and answer any questions.

What are the payment terms in the project? What promotions or discounts are currently available to buyers? Which banks do you work with for a mortgage? What do the technical specifications of the apartment include? Can changes be made to the design?
Contact the entrepreneur
girl

Галерея

  • Галерея
  • Фотографии интерьера

04-09-2025

На карте

google_map waze

Limassol Pyrgos

'~$file['description']~'
Оставьте ваши данные

Застройщик

MIR Residences: Мезонеты

icon
Всего на сайте

9 Проекты

Показать номер 35725322112
Декларация проекта размещена на сайте застройщика. Проекты строительства охватывают все районы.

Подробнее о проекте

about Акция

Pissouri Forest Park

Limassol

Подписаться на новости

Получайте первыми информацию о новых проектах и покупайте недвижимость по лучшим ценам!

Рекомендации

Подробнее P.L. Property Gallery Developers & Constructors Ltd
Сейчас смотрят
Недавно просмотренные
Pissouri Forest Park

Pissouri Forest Park

Limassol

P.L. Property Gallery Developers & Constructors Ltd

YOO Limassol Apartments

YOO Limassol Apartments

Limassol

P.L. Property Gallery Developers & Constructors Ltd

YOO Limassol Villas

YOO Limassol Villas

Limassol

P.L. Property Gallery Developers & Constructors Ltd

Homer Residences

Homer Residences

Limassol

P.L. Property Gallery Developers & Constructors Ltd

Akakia Residences

Akakia Residences

Paphos

Island Blue Cyprus

YOO Limassol Villas

YOO Limassol Villas

Limassol

P.L. Property Gallery Developers & Constructors Ltd

Pissouri Forest Park

Pissouri Forest Park

Limassol

P.L. Property Gallery Developers & Constructors Ltd

Flow

Flow

Limassol

BBF

MIR Residences: Мезонеты

MIR Residences: Мезонеты

Limassol

P.L. Property Gallery Developers & Constructors Ltd

Время обновиться
в новой квартире

icon
  • Процентные ставки
    Доступные
    icon
  • Безопасность
    Для семьи
    icon

Ипотека

Ипотека на покупку новой недвижимости от застройщика
Получите выгодное предложение

background

Ищете жильё и не можете найти
подходящий вариант?

Адрес или название проекта

Адрес или название проекта

"Нашли ошибку?" - Сообщите нам. Вместе мы сделаем сайт лучше!

Сообщить об ошибке

Нашли ошибку?
Вопрос 1 из 6
Заполните короткую анкету, чтобы проверить соответствие новым проектам
В каком районе вы ищете?
icon
icon
Получить консультацию
Вопрос 2 из 6
Какой тип недвижимости вы ищете?
Выберите вариант, который лучше всего соответствует вашим потребностям. Это поможет нам предложить наиболее подходящие объекты.
icon
icon
Назад
Получить консультацию
Вопрос 3 из 6
Количество комнат
Вы можете выбрать несколько вариантов
Назад
Получить консультацию
Вопрос 4 из 6
Бюджет
Назад
Получить консультацию
Вопрос 5 из 6
Do you need mortgage advice?
  • Preferred interest rates
  • Time and money saving
  • Professional guidance throughout the process
  • Working for you, not the banks
Назад
Получить консультацию
Вопрос 6 из 6
Нужно ли вам продать текущую недвижимость, чтобы приобрести новую?
Назад
Получить консультацию
Оставьте свои контактные данные, и мы свяжемся с вами с подходящими предложениями. Бесплатно
Назад
Настройки доступности на сайте
Изменить цвет текста
Изменить цвет фона
Изменить цвет заголовков
Увеличить/уменьшить шрифт
Изменить межстрочный интервал
Изменить расстояние между буквами
Оставьте ваши данные
Оставьте ваши данные
image

Получить презентацию проекта на email